Model de Casă

Acasă / Model de Casă

Verdia Residence

Model de casă Verdia Residence

Modelul standard propus în cadrul proiectului Verdia Residence este o locuință modernă, cu regim de înălțime parter + etaj, proiectată pentru a oferi confort, spațiu și eficiență.

Modelul poate fi adaptat în funcție de cerințele clientului, atât la nivel de compartimentare, cât și finisaje.

Parter:

✔ living + dining:   18.22 mp
✔ bucătărie:           12.37 mp
✔ vestibul:               4.62 mp
✔ birou:                10.22 mp
✔ hol + casa scării:  8.10 mp
✔ baie:                   4.00 mp
✔ terasa:                 3.80 mp
✔ terasa:                11.02 mp

Parter Casa Verdia Residence

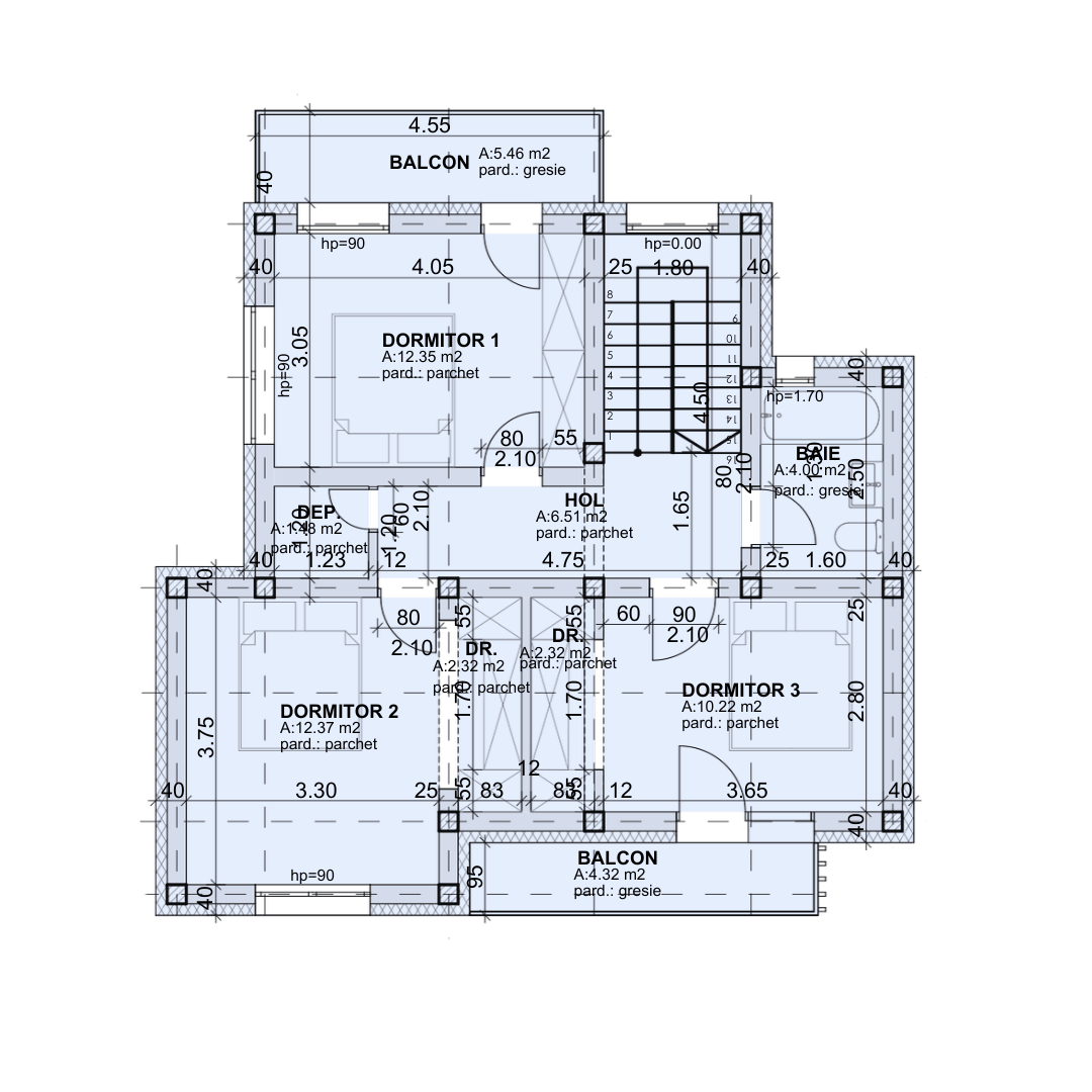
Etaj:

✔ dormitor 1: 12.35 mp
✔ dormitor 2: 12.37 mp
✔ dormitor 3: 10.22 mp
✔ baie:           4.00 mp
✔ hol:             6.51 mp
✔ balcon 1:     4.32 mp
✔ balcon 2:     5.46 mp

Verdia Residence

Proiectul pune accent pe:

Fiecare locuință este realizată pe baza unui proiect tehnic atent detaliat, folosind materiale verificate și soluții constructive moderne, care asigură stabilitate, eficiență energetică și un nivel ridicat de siguranță. Structura este gândită pentru a respecta normele actuale de rezistență și siguranță, iar finisajele sunt alese pentru a oferi un echilibru între estetică, funcționalitate și ușurință în exploatare, astfel încât casa să își păstreze valoarea și confortul în timp.

Funcționalitatea spațiului este un element central în concepția locuințelor din Verdia Residence. Compartimentarea a fost gândită pentru a valorifica fiecare metru pătrat, asigurând o circulație firească între zonele de zi și cele de noapte, precum și o separare clară între spațiile private și cele comune. Încăperile sunt proporționate corect, ușor de mobilat și adaptabile diferitelor nevoi ale unei familii, iar lumina naturală este pusă în valoare prin deschideri generoase. Rezultatul este un spațiu coerent, aerisit și practic, care susține un stil de viață confortabil și echilibrat.

Libertatea de personalizare este unul dintre principalele avantaje ale proiectului Verdia Residence. Fiecare client are posibilitatea de a-și adapta locuința în funcție de propriile nevoi și preferințe, fie că este vorba despre compartimentare, destinația anumitor încăperi, finisaje sau detalii de design interior. Această flexibilitate permite transformarea casei într-un spațiu cu adevărat personal, care reflectă stilul de viață al proprietarilor, fără a face compromisuri între estetică, funcționalitate și confort.

Comunitatea restrânsă din cadrul Verdia Residence oferă un plus de confort, siguranță și intimitate. Proiectul este format dintr-un număr limitat de locuințe, ceea ce încurajează un mediu liniștit, bine organizat și relații armonioase între vecini. Lipsa aglomerației, traficul redus și atmosfera prietenoasă contribuie la crearea unui cadru ideal pentru viața de familie, în care fiecare locuință beneficiază de spațiu, discreție și un sentiment real de apartenență.

Verdia Residence

Case moderne într-un cadru natural, la Păun, lângă Iași. 13 locuințe individuale | Proiect nou | Posibilitate de personalizare

© Copyright 2026 Verdia Residence - Toate drepturile rezervate.